Трансформатор сухой ТСЗЛ 1600/10/0,4/IP21/Dy-h11/A
от производителя, г.Казань- Описание
- Файлы
- Вопросы
- Отзывы
- Контакты
Российский завод-производитель трансформаторов «ВОСТОКЭНЕРГОТРАНС» предлагает заказчикам купить по выгодной цене трансформатор сухой ТСЗЛ 1600/10/0,4/IP21/Dy-h11/A без посредников.
Характеристики трансформатора сухого типа с литой изоляцией: ТСЗЛ/1600/10/0.4/D/Yн-11/IP31/AL
•Тип: ТСЗЛ (трехфазный, сухого типа , защищённый с литой изоляцией)
•Концепция конструкции: Стержневой
•Номинальная мощность, кВа: 1600
•Номинальное напряжение на стороне ВН, кВ: 10
•Номинальное напряжение на стороне НН, кВ: 0.4
•Материал обмотки: Алюминий
•Напряжение короткого замыкания Uкз(%) ± 10%: 6
•Частота питающей сети, Гц: 50
•Степень защиты кожуха (корпус): IP31
•Класс нагревостойкости изоляции: F(155°C)
•Переключение без возбуждения (ПБВ), %: ±2х2,5
•Схема и группа соединения обмоток: D/Yн-11 (треугольник-звезда)
•Уровень шума дB(A): Менее 70
•Охлаждение: Естественное AN/AF
•Высота установки над уровнем моря, м: До 1000
•Потери холостого хода ± 15%, Вт: 2450
•Потери короткого замыкания 120°C ± 10%, Вт: 11730
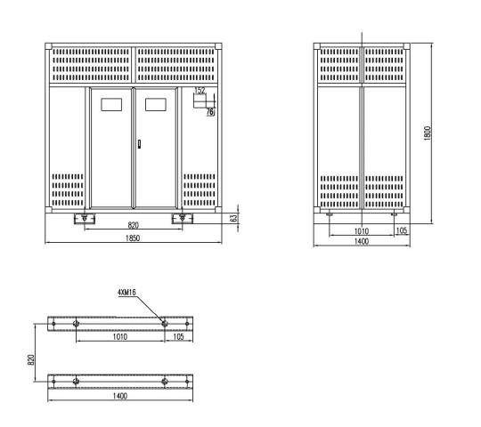
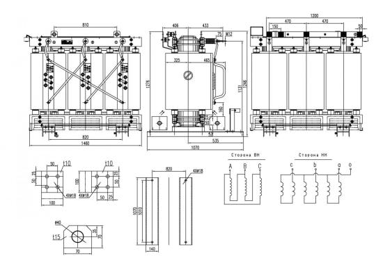
•Габариты трансформатора, мм: 1460*1070*1246
•Колея колес (или опор), мм: 820*1010
•Вес трансформатора без кожуха ± 10%, кг: 2955
•Климатическое исполнение: УЗ - умеренный климат в закрытых помещениях с вентиляцией
•Тип вывода ВН и НН: Шина, либо Кабель
•Расположение выводов ВН: по согласованию с заказчиком
•Расположение выводов НН: по согласованию с заказчиком
•Материал выводов НН: алюминий, либо медь
•Габариты кожуха: 1850*1400*1800 мм
•Вес трансформатора с кожухом ± 10%, кг: 3155
* - Точные размеры, а также подлежащие измерению фактические параметры и вес указываются в паспорте трансформатора.
Типовая комплектация:
•Трансформатор
•Транспортные колёса - ролики
•Паспорт на трансформатор (с заключением ОТК)
•Сертификат сейсмостойкости (до 9 баллов)
•Сертификат соответствия ГОСТ Р12.1.004-91 «Система стандартов безопасности труда. Пожарная безопасность»
•Русифицированный цифровой блок температурного контроля BWDK с терморегулятором и датчиком температуры обмоток (4 шт) выполняющий роль шкафа теплового контроля
•Вентиляторы 4 шт.
•Комплект эксплуатационной документации на блок температурного контроля
Гарантийные обязательства: 60 месяцев с момента передачи товара покупателю. Чертеж сухого трансформатора 1600 ква дан в описании
Наличие товара уточняйте у менеджера.
Чертеж сухого трансформатора ТСЗЛ 1600 ква с литой изоляцией прилагается
Купить сухой трансформатор 1600 ква с литой изоляцией у производителя Востокэнерготранс
Гарантийные обязательства: 60 месяцев с момента передачи товара покупателю. Чертеж сухого трансформатора 1600 ква дан в описании.
Наличие товара уточняйте у менеджера.
Чертеж сухого трансформатора ТСЗЛ 1600 ква с литой изоляцией прилагается.
Купить сухой трансформатор 1600 ква с литой изоляцией у производителя Востокэнерготранс.
Последнее редактирование: 2026-02-26 09:08:17
| Адрес | Татарстан респ., Казань, Тази Гиззата ,д.6/31, пом.6 |
| Телефон | +7 (913) 244-2244 |
| +7-9132442244 | |
| Электронная почта | sales@trans-zavod.ru |
| Официальный сайт | trans-zavod.ru |
| Наименование | ООО "ВОСТОКЭНЕРГОТРАНС" |
| ОГРН | 1231600023698 |
| ИНН | 1655495099 |
| КПП | 165501001 |
| Юридический адрес | 420111, Респ Татарстан, г Казань, Вахитовский р-н, ул Тази Гиззата, д 6/31, помещ 6 |
| Дата регистрации | 02.05.2023 |
| Сотрудники | 2 |
| Виды деятельности |
Основной ОКВЭД
27.90 Производство прочего электрического оборудования
Дополнительные ОКВЭД
35.12 Передача электроэнергии и технологическое присоединение к распределительным электросетям
46.69 Торговля оптовая прочими машинами и оборудованием
47.78 Торговля розничная прочая в специализированных магазинах
70.10.1 Деятельность по управлению финансово-промышленными группами
70.10.2 Деятельность по управлению холдинг-компаниями
70.22 Консультирование по вопросам коммерческой деятельности и управления
71.12 Деятельность в области инженерных изысканий, инженерно-технического проектирования, управления проектами строительства, выполнения строительного контроля и авторского надзора, предоставление технических консультаций в этих областях
71.12.6 Деятельность в области технического регулирования, стандартизации, метрологии, аккредитации, каталогизации продукции
71.12.12 Разработка проектов промышленных процессов и производств, относящихся к электротехнике, электронной технике, горному делу, химической технологии, машиностроению, а также в области промышленного строительства, системотехники и техники безопасности
Показать весь список...
|
- Промышленные светильники от производителей России
- Настольные светильники от производителей России
- Лампы от производителей России
- Медные провода от российских производителей
- Дизельные генераторы от российских производителей
- Слаботочные кабели от российских производителей
- Распределительные щиты от производителей России
- Торговое освещение от производителей России
- Кабели КГ от российских производителей
- Прогревочный провод ПНСВ от российских производителей













